地质灾害 + 建筑工程 + 交通水利!一台裂缝监测一体机,覆盖多领域安全需求【FT-LFZ1】风途科技厂家品质有保障,专业技术与贴心售后服务,让您无后顾之忧。
在安全监测领域,一台裂缝监测一体机展现出强大的跨领域应用能力。它聚焦地质灾害、建筑工程、交通水利三大关键领域,全面覆盖多领域安全需求。
在地质灾害方面,它可部署于山体、边坡等易发生滑坡、崩塌的区域,实时监测岩体裂缝变化,为灾害预警提供数据支撑。建筑工程中,无论是高楼大厦的墙体,还是大型场馆的结构,它都能精准捕捉裂缝动态,保障建筑安全。交通水利领域,它能对桥梁、隧道的裂缝以及堤坝、水渠的裂缝进行持续监测,及时发现潜在隐患。这台一体机凭借其多功能特性,实现多领域安全监测的无缝衔接,为各行业安全保驾护航。

一、产品简介
本产品广泛应用于地质灾害、岩土工程、建筑工程、交通、水利、市政等多个监测领域,特别适用于地表裂缝、卸荷裂隙、房屋或结构裂缝等相对位移的精确监测。
在地质灾害监测中,能够实时捕捉地表裂缝的微小变化,为滑坡、崩塌等灾害预警提供关键数据;在岩土工程中,可有效监测卸荷裂隙的发展趋势,确保工程安全;
在建筑工程领域,能够精准检测房屋或结构裂缝的位移情况,为建筑物的健康诊断和维护提供科学依据;
在交通、水利和市政工程中,同样能够发挥重要作用,确保基础设施的长期稳定运行。
通过高精度的监测数据,帮助用户及时采取应对措施,降低风险,保障工程和人员安全。
二、技术参数
| 量程 | 0-1000mm | 
| 精度 | ±0.02%F.S | 
| 响应时间 | 1s | 
| 外壳材质 | ABS | 
| 供电电压 | 12-24VDC(0.4W@12V) | 
| 通讯方式 | modbus-485 | 
| 太阳能板功率 | 8W | 
| 太阳能板标准工作电压 | DC5V | 
| 内置锂电池容量 | 5000mAh | 
| 支架材质 | 不锈钢 | 
| 采集器 | 带3年流量 | 
| 数据传输 | 标配每10分钟传输一次,支持定制 | 
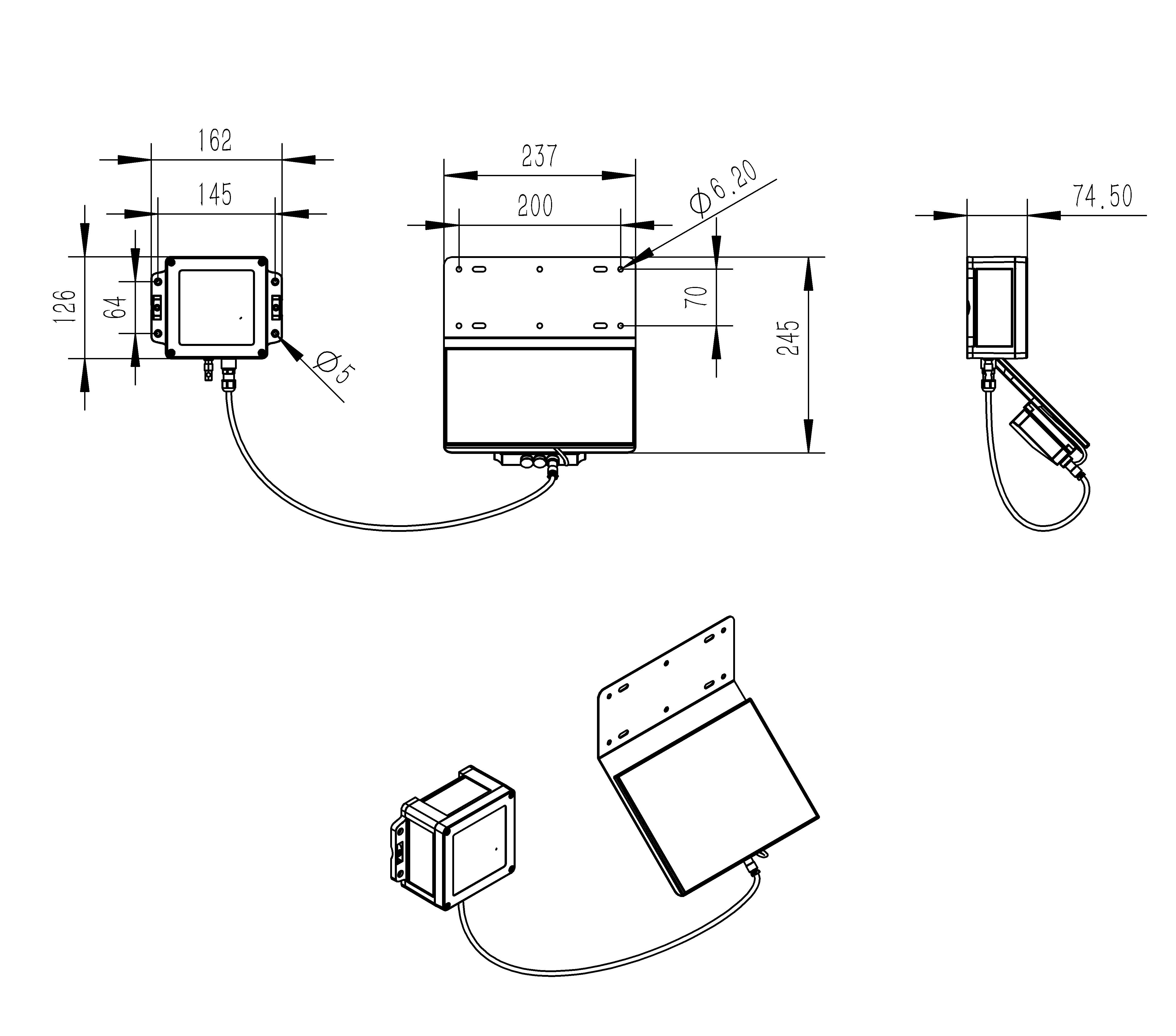
三、产品尺寸图
